開業物件

PROPERTY

(仮称)矢口渡医療ビル【脳神経外科・消化器内科 開業決定!!】

商店街・駅近3分の注目物件!
脳神経外科・消化器内科
開業決定!!

募集科目

皮膚科・耳鼻咽喉科・婦人科 等
サンプル画像
サンプル画像

POINT

・矢口渡駅から徒歩3分
敷地200坪の大型医療ビル

・2023年8月竣工予定の新築医療ビル。
環八通り傍で矢口渡駅から視認証も良好。
地域にない大型医療ビルです。
  • 駅から徒歩3分
  • 競合少なく、集患力有
  • 開業支援制度有
所在地
東京都大田区多摩川1-20-3
アクセス
東急多摩川線 矢口渡より徒歩3分
建物
鉄骨造 地上2階建
築年月日
令和5年 7月竣工予定
賃料
2階 10,450円(坪/税込)
共益費
2階 1,650円(坪/税込)
保証金
各賃料の6ヶ月分(償却あり)
礼金
各賃料の1ヶ月分(税別)
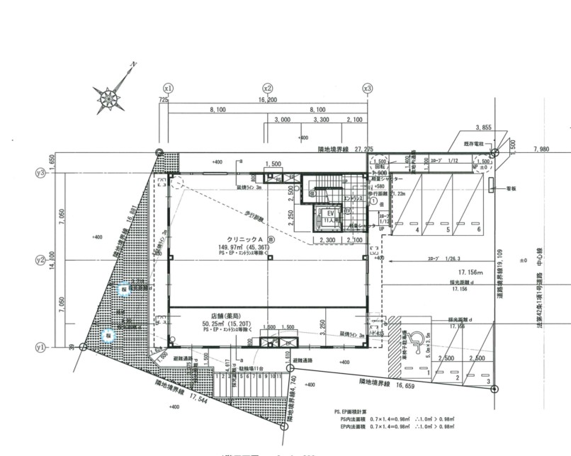
区画
1階  脳神経外科 決定
2階A  147.08㎡ / 44.4坪
2階B  消化器内科 決定
引き渡し
令和5年 8月予定
その他
大型EV・駐輪場あり
駐車場4台(他、近隣コインパーク有)
MRI・CT設置予定
大型案内板設置予定
調剤薬局開局 決定
*バリアフリー、各セキュリティー対応可能
*工事区分については別途お打ち合わせにより決定
*開業支援制度有

(仮称)湘南台7丁目医療ビル【スーパーマーケット隣接!!】

湘南台7丁目医療ビル【スーパーマーケット隣接!!】

募集科目

内科・耳鼻科・小児科
サンプル画像
サンプル画像
サンプル画像

POINT

・矢口渡駅から徒歩3分
敷地200坪の大型医療ビル

・2023年8月竣工予定の新築医療ビル。
環八通り傍で矢口渡駅から視認証も良好。
地域にない大型医療ビルです。
  • 駅から徒歩3分
  • 競合少なく、集患力有
  • 開業支援制度有
所在地
東京都大田区多摩川1-20-3
アクセス
東急多摩川線 矢口渡より徒歩3分
建物
鉄骨造 地上2階建
築年月日
令和5年 7月竣工予定
賃料
2階 10,450円(坪/税込)
共益費
2階 1,650円(坪/税込)
保証金
各賃料の6ヶ月分(償却あり)
礼金
各賃料の1ヶ月分(税別)
区画
1階  脳神経外科 決定
2階A  147.08㎡ / 44.4坪
2階B  消化器内科 決定
引き渡し
令和5年 8月予定
その他
大型EV・駐輪場あり
駐車場4台(他、近隣コインパーク有)
MRI・CT設置予定
大型案内板設置予定
調剤薬局開局 決定
*バリアフリー、各セキュリティー対応可能
*工事区分については別途お打ち合わせにより決定
*開業支援制度有